Villa Zoé

Descriptif de la maison

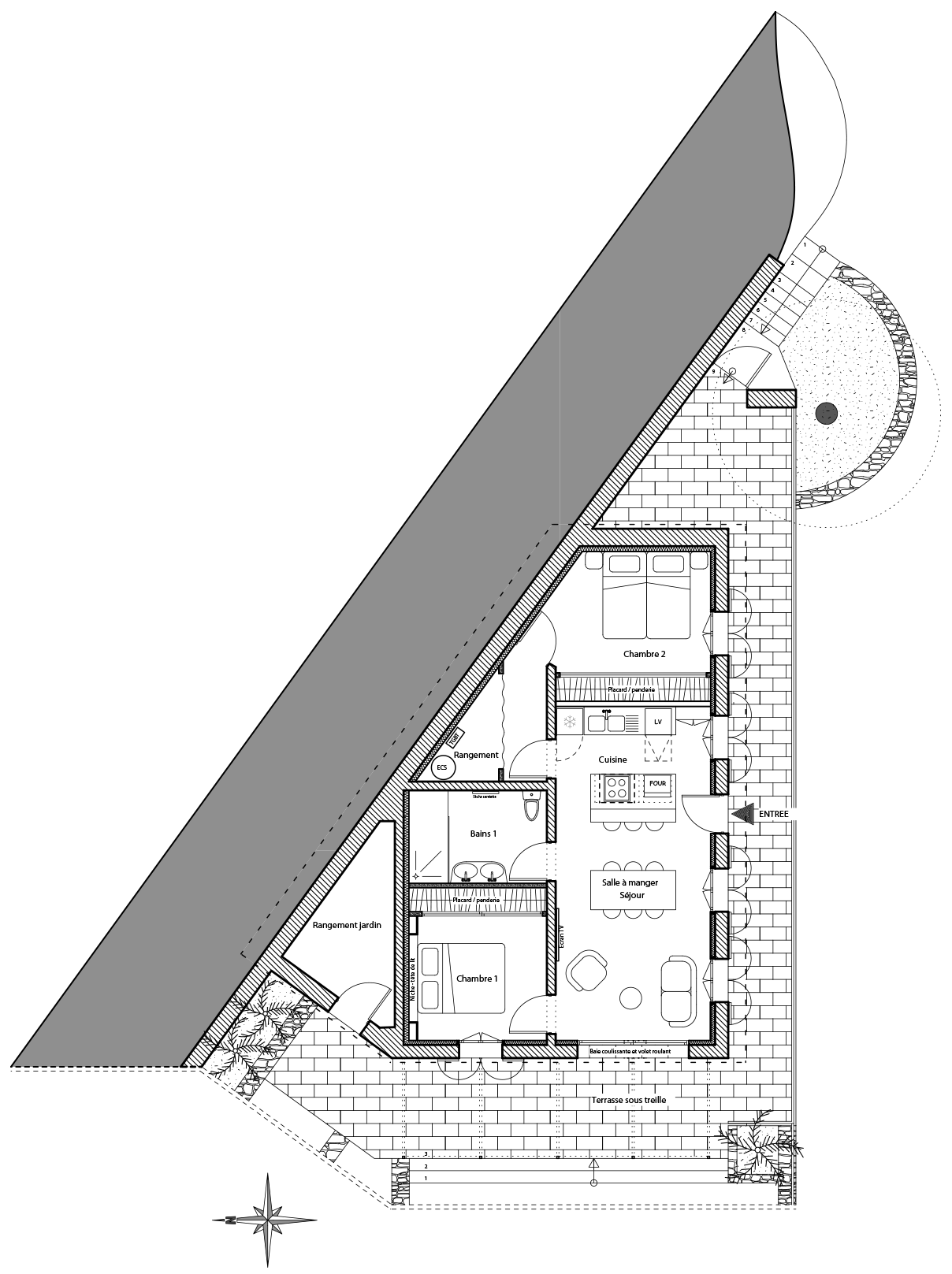
Cette maison est située sur les contreforts Sud du village du Barroux. Le quartier est tranquille et l’environnement très agréable. Cette maison a une surface totale de 70 m2. Elle possède un jardin d’agrément soigné composé de différentes terrasses aménagées. La propriété est entièrement clôturée (accès par portail automatisé).

L’entrée de la maison donne accès à une salle-à-manger/séjour qui se compose d’une cuisine aménagée (avec îlot central), d’un espace repas et d’un espace salon (Canapé, chaîne hifi, Tv grand écran plat,…) qui s’ouvre sur une belle terrasse.

La première chambre est équipée d’un lit 160*200 et d’un grand placard de rangement.

La seconde chambre est équipée de deux lits 90*200 pouvant se transformer en un grand lit 180*200 (au choix du locataire)

La salle de bain est dotée d’un lavabo double vasques, d’une douche à l’italienne, d’un wc ainsi que d’un meuble de rangement.

En extérieur, le jardin d’agrément est divisé en plusieurs espaces :

  • • Une terrasse solarium.
  • • Un espace repas/repos à l’ombre des chênes et des oliviers.
  • • Un coin barbecue.
  • • Un espace jardin composé de nombreux arbustes et plantes florifères.
  • • Enfin, le mobilier de jardin se compose d'une table, de 4 chaises et de 2 chaises longues.

La maison dispose d'un accès privé à une piscine commune à trois autres logements (villa Bordiga).
Cette piscine de 48 m² (12x4) offre une jolie vue sur le village et le château du Barroux.
L'espace piscine est agrémenté d'une grande terrasse/solarium avec bains de soleil, parasols,...

Plan de la maison

Photos